Строительная компания Green gardens
+7 (905) 222 55 11
Время работы:
Пн-Пт 10-18
Главная страница
Проекты домов
Проект двухэтажного дома из кирпича с комнатой для прислуги
к каталогу проектов
Дом D161 Проект двухэтажного дома из кирпича с комнатой для прислуги
D161
711 м²
Стоимость проекта
49 000 ₽
В стоимость входит
Комплект архитектурно-строительных чертежей (АС)
Инженерные разделы: ВК + ОВ
Посмотреть дополнительные опции
Купить проект
Стоимость строительства
~16 725 000 ₽
Посмотреть подробные комплектации
Вопрос по строительству
О проекте
Состав проекта
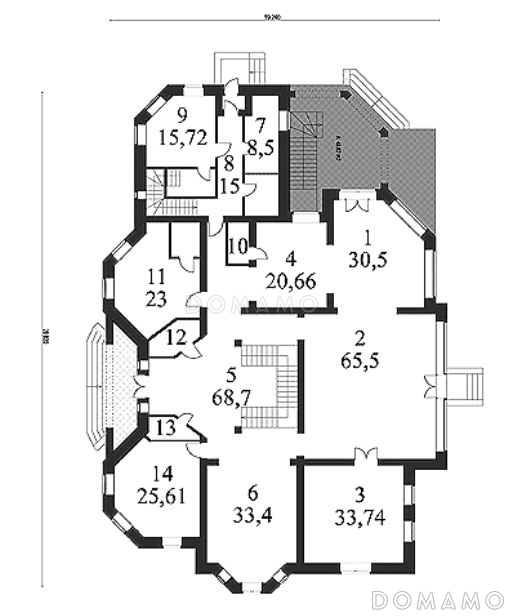
Планы помещений
План 1 этажа
План 2 этажа
Технические характеристики
Общие
Материал стен
Кирпич
Общая площадь
711 м²
Количество жилых комнат/спален
6
Этажи
2 этажа
Гараж
Нет гаража
Подвал / цокольный этаж
Без окон
Ширина дома
19.2 м
Длина дома
29.5 м
Кровля
Гибкая черепица
Облицовка внешних стен
Мокрая штукатурка
Толщина несущих наружных стен
510 мм
Межэтажные перекрытия
Монолитные
Внутренние не несущие перегородки
Кирпичные
Фундамент
Ленточный монолитный
Терраса
Без террасы
Стиль
Эклектика
Дополнительные
Окна
Окна до пола
,
Панорамные окна
Сауна/баня внутри
Нет
Площадь гостиной
65.5 м²
Площадь кухни
33.7 м²
Количество санузлов
5
Кладовая
7
Входит в стоимость
Цена, руб.
Сроки, дней
Комплект архитектурно-строительных чертежей (АС)
Входит в стоимость
Готов к отправке
Инженерные разделы: ВК + ОВ
Входит в стоимость
Готов к отправке
к каталогу проектов
Проекты предоставлены порталом
Domamo.ru