Строительная компания Green gardens
+7 (905) 222 55 11
Время работы:
Пн-Пт 10-18
Главная страница
Проекты домов
Проект двухэтажного коттеджа с большим гаражом
к каталогу проектов
Дом D185 Проект двухэтажного коттеджа с большим гаражом
D185
188 м²
Стоимость проекта
15 000 ₽
В стоимость входит
Эскизный проект (Раздел "АР")
Посмотреть дополнительные опции
Купить проект
Стоимость строительства
~2 730 000 ₽
Посмотреть подробные комплектации
Вопрос по строительству
О проекте
Состав проекта
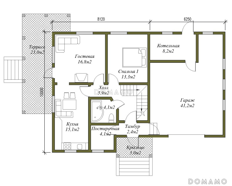
Планы помещений
План 1 этажа
План мансардного этажа
Фасады
Технические характеристики
Общие
Материал стен
Каркасно-панельные
Общая площадь
188 м²
Жилая площадь
75.5 м²
Площадь застройки
168.1 м²
Количество жилых комнат/спален
5
Этажи
1 этаж + мансарда
Гараж
Пристроенный гараж
Количество машин
1
Подвал / цокольный этаж
Без подвала
Ширина дома
10.0 м
Длина дома
14.4 м
Высота в коньке
9.75 м
Кровля
Гибкая черепица
Облицовка внешних стен
Фасадные панели
Толщина несущих наружных стен
200 мм
Межэтажные перекрытия
Щитовые
Внутренние не несущие перегородки
Каркасно-обшивные
Фундамент
Свайный
Терраса
Терраса крытая
Стиль
Скандинавский
Дополнительные
Окна
Панорамные окна
Мансардные окна
Есть
Камин
Есть
Сауна/баня внутри
Нет
Площадь гостиной
16.8 м²
Площадь кухни
15.1 м²
Количество санузлов
2
Котельная
Есть
Постирочная
Есть
Хозяйская гардеробная
Есть
Кладовая
1
Входит в стоимость
Цена, руб.
Сроки, дней
Эскизный проект (Раздел "АР")
Входит в стоимость
Готов к отправке
Дополнительные опции
Готово к продаже
Цена, руб.
Сроки, дней
Паспорт рабочего проекта
5 000 ₽
3 рабочих дня
купить
Дополнительная копия проекта формата А3
4 000 ₽
Готов к отправке
купить
Электронная копия проекта (скан распечатанной версии)
4 000 ₽
3 рабочих дня
купить
к каталогу проектов
Проекты предоставлены порталом
Domamo.ru