| Цена, руб. | Сроки, дней | ||
|---|---|---|---|
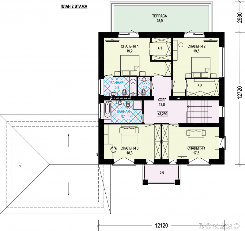
| Комплект архитектурно-строительных чертежей (АС) | Входит в стоимость | 25 рабочих дней |
| Цена, руб. | Сроки, дней | ||
|---|---|---|---|
| Зеркальная версия проекта | Входит в стоимость | 25 рабочих дней | |
| Паспорт рабочего проекта | 5 000 ₽ | 25 рабочих дней | купить |
| Инженерные разделы: ВК + ОВ + ЭО | 23 000 ₽ | 25 рабочих дней | купить |
| Дополнительная копия проекта формата А3 | 3 000 ₽ | 25 рабочих дней | купить |
| Две дополнительные копии проекта формата А3 + 1 паспорт рабочего проекта | 10 100 ₽ | 25 рабочих дней | купить |
| Электронная копия проекта (скан распечатанной версии) | 4 000 ₽ | 3 рабочих дня | купить |
|
Минимальная
7 510 500 ₽
Задать вопрос
|
|||
| Кровля | |||
| Кровельное покрытие |
|
||
| Обрешетка |
|
||
| Контробрешетка |
|
||
| Противоконденсатная (ветро-гидроизоляционная) пленка |
|
||
| Стропильная система |
|
||
| Утепление чердачного перекрытия и стропильной системы |
|
||
| Подшивка свесов кровли |
|
||
| Подшивка потолков террас и лоджий |
|
||
| Водосточная система |
|
||
| Система снегозадержания |
|
||
| Молниезащита |
|
||
| Фундамент | |||
| Сваи ж/бетонные |
|
||
| Сваи стальные винтовые |
|
||
| Лента ж/бетонная монолитная мелкозаглубленная |
|
||
| Лента ж/бетонная монолитная на глубину промерзания |
|
||
| Лента ж/бетонная сборная (из ФБС) на глубину промерзания |
|
||
| Плита ж/бетонная монолитная мелкозаглубленная |
|
||
| УШП (Утепленная Шведская Плита) |
|
||
| Бетоннная отмостка по периметру дома |
|
||
| Дренажная система по периметру дома |
|
||
| Ливневая система |
|
||
| Облицовка цоколя фундамента |
|
||
| Система контурного заземления |
|
||
| Стены | |||
| Несущая часть стены |
|
||
| Фасадная отделка |
|
||
| Утепление стены |
|
||
| Внутренняя обшивка/штукатурка со стороны помещения |
|
||
| Пол первого этажа | |||
| Несущая часть перекрытия |
|
||
| Теплоизоляция цокольного перекрытия |
|
||
| Стяжка/подготовка под чистый пол |
|
||
| Перекрытия над первым и последующими этажами | |||
| Несущая часть перекрытия |
|
||
| Звукоизоляция/теплоизоляция в перекрытии |
|
||
| Стяжка/подготовка под чистый пол |
|
||
| Отделка потолка нижележащего этажа |
|
||
| Окна и внешние двери | |||
| Окна |
|
||
| Оконные наличники |
|
||
| Откосы в помещении |
|
||
| Отливы снаружи |
|
||
| Подоконники |
|
||
| Входные двери |
|
||
| Внутренние конструкции | |||
| Внутренние несущие стены |
|
||
| Внутренние ненесущие стены |
|
||
| Звукоизоляция внутренних стен/перегородок |
|
||
| Межэтажная строительная (черновая) лестница |
|
||
| Межэтажная постоянная (чистовая) лестница |
|
||
| Межкомнатные двери |
|
||
| Высота потолков 1 этажа |
|
||
| Высота потолков 2 этажа |
|
||
| Настилы полов и ограждения крылец, террас, балконов |
|
||
| Гидроизоляция полов балконов |
|
||
| Инженерное оснащение | |||
| Жидкостной теплый пол |
|
||
| Электрический теплый пол |
|
||
| Система вентиляции |
|
||
| Только вводы воды, электричества, выводы канализации |
|
||
| Электроразводка и электрощит |
|
||
| Разводка хол. и гор. водоснабжения (ХВС и ГВС) |
|
||
| Разводка батарей и/или системы теплого пола. Без оборудования котельной. |
|
||
| Иное инженерное оснащение |
|
||
| Подготовка участка для строительства | |||
| Устройство временного щита электроснабжения |
|
||
| Устройство въезда на участок |
|
||
| Дорога на участке до пятна застройки |
|
||
| Подъем пятна застройки |
|
||
| Подготовка пятна застройки для фундаментных работ |
|
||
| Перемещение или вывоз грунта из котлована фундамента |
|
||
| Обеспечение строительного процесса | |||
| Доставка стройматериалов |
|
||
| Генератор для обеспечения электричеством |
|
||
| Уборка и вывоз строительного мусора |
|
||
| Организация проживания рабочих (бытовка) |
|
||
| Биотуалет для рабочих |
|
||
| Гарантия на все выполненные работы | |||
| Гарантия |
5 лет
|
||
| Задать вопрос | |||



