Строительная компания Green gardens
+7 (905) 222 55 11
Время работы:
Пн-Пт 10-18
Главная страница
Проекты домов
Проект коттеджа из бруса в современном стиле
к каталогу проектов
Дом D269 Проект коттеджа из бруса в современном стиле
D269
280/40 м²
Стоимость проекта
29 500 ₽
В стоимость входит
Комплект архитектурно-строительных чертежей (АС)
Посмотреть дополнительные опции
Купить проект
Стоимость строительства
7 840 000 ₽
Посмотреть подробные комплектации
Вопрос по строительству
О проекте
Состав проекта
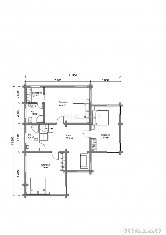
Планы помещений
План 1 этажа
План 2 этажа
Фасады
Технические характеристики
Общие
Материал стен
Брус
Общая площадь
280/40 м²
Жилая площадь
131 м²
Площадь застройки
250 м²
Количество жилых комнат/спален
4
Этажи
2 этажа
Гараж
Встроенный гараж
Количество машин
1
Подвал / цокольный этаж
Без подвала
Ширина дома
16.6 м
Длина дома
15.0 м
Кровля
Металлочерепица
Толщина несущих наружных стен
200х180 мм
Межэтажные перекрытия
По деревянным балкам
Внутренние не несущие перегородки
Каркасно-обшивные
Фундамент
Монолитная ж/бетонная плита
Терраса
Терраса открытая
Стиль
Скандинавский
Дополнительные
Сауна/баня внутри
Есть
Площадь гостиной
49 м²
Площадь кухни
20 м²
Количество санузлов
4
Окно в ванной комнате
Есть
Котельная
Есть
Хозяйский санузел
Есть
Входит в стоимость
Цена, руб.
Сроки, дней
Комплект архитектурно-строительных чертежей (АС)
Входит в стоимость
Готов к отправке
к каталогу проектов
Проекты предоставлены порталом
Domamo.ru