+7 (905) 222 55 11
Время работы:
Пн-Пт 10-18
к каталогу проектов

Дом D3072 Проект одноэтажного мансардного дома из газобетона с эркером в кухонной зоне, вертикальным мансардным окном и гаражом на два автомобиля

D3072
237 м²
Стоимость проекта
37 200 ₽
В стоимость входит
Комплект архитектурно-строительных чертежей (АС)
Посмотреть дополнительные опции
Купить проект

Стоимость строительства
от 6 267 250 ₽
Посмотреть подробные комплектации
Вопрос по строительству
О проекте Состав проекта Комплектации
Технические характеристики
Общие
Материал стен
Газобетон
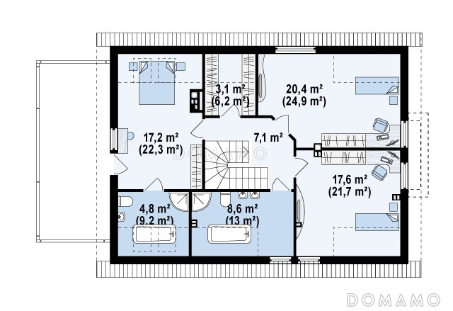
Общая площадь
237 м²
Площадь застройки
161.7 м²
Количество жилых комнат/спален
4
Этажи
1 этаж + мансарда
Гараж
Пристроенный гараж
Количество машин
2
Подвал / цокольный этаж
Без подвала
Ширина дома
18.01 м
Длина дома
9.84 м
Высота в коньке
7.94 м
Кровля
Металлочерепица
Облицовка внешних стен
Деревянная вагонка
,
Мокрая штукатурка
Толщина несущих наружных стен
380 мм
Межэтажные перекрытия
Монолитные
Внутренние не несущие перегородки
Газобетонные
Фундамент
Ленточный заглубленный из ФБС
Терраса
Терраса открытая
,
Терраса крытая
Стиль
Классический
Дополнительные
Окна
Окна до пола
,
Окна с французским балконом
Мансардные окна
Есть
Камин
Есть
Сауна/баня внутри
Нет
Площадь гостиной
27.9 м²
Площадь кухни
10.6 м²
Количество санузлов
3
Окно в ванной комнате
Есть
Котельная
Есть
Кабинет
Есть
Хозяйский санузел
Есть
Кладовая
3
Входит в стоимость
Цена, руб. Сроки, дней
Комплект архитектурно-строительных чертежей (АС) Входит в стоимость Готов к отправке

Основной проект (АС) включает в себя разделы АР и КР. Это все, что касается строительства теплого контура дома (фундамент, стены, кровля, окна) с внешней отделкой +ведомости основных материалов.

Архитектурный раздел (АР).

Этот набор чертежей определяет, как будет выглядеть дом.

Раздел включает:

  • Поэтажные планы. Здесь отражена планировка каждого этажа — расположение комнат, расположение и размеры окон и дверных проемов, толщина стен, расположение дымоходов и вентиляционных каналов.
  • Фасады.
  • План кровли.
  • Планы перекрытий.
  • Разрезы — чертежи вертикального поперечного сечения дома. Они показывают высоту этажей, заглубление подвала, угол наклона крыши. Все эти значения важны, насколько человеку будет комфортно стоять в полный рост под скатной крышей, будут ли открываться двери под лестницей.


ПРИМЕРНЫЙ состав Архитектурного раздела (АР).
1. Ведомость основных комплектов рабочих чертежей. Ведомость рабочих чертежей основного комплекта. Общие данные.
2. План 1-го этажа. Экспликация помещений.
3. План кровли. Спецификация перемычек. Разрезы перемычек.
4. Фасады в осях 1-4, 4-1, А-г, Г-А. Ведомость внешней отделки.
5. Разрезы 1-1. Узел примыкания деревянной обшивки фасада к штукатурному фасаду.
6. Экспликация полов. Спецификация элементов заполнения проемов. Элементы заполнения проемов.
7. Узел опирания перемычки над проемами. Узел опирания внешней стены на фундамент. Узлы армирования террасы.
8. Узлы.

Конструктивный раздел (КР)

Раздел включает:

  • Чертежи фундаментов: конструкции, сечения, спецификации элементов фундамента, схемы армирования и соединений.
  • Схемы перекрытий этажей: схема раскладки плит перекрытия, схема армирования, схема расположения балок, спецификация элементов перекрытия.
  • Детали и узлы: примыкание конструктивных элементов друг к другу, сечения, спецификации материалов

ПРИМЕРНЫЙ состав Конструктивного раздела (КР).
1. Общие данные.
2. Схема расположения монолитного фундамента на отм.-1,600 (опалубка). Разрезы 1-1, 2-2.
3. Схема расположения монолитного фундамента на отм. -1.600(армирование)
4. Монолитный фундамент ФМ-1.
5. Монолитный фундамент ФМ-2.
6. Схема расположения элементов сборного фундамента.
7. Узел устройства фундамента. Разрез 1-1.
8. Схема расположения элементов каркаса.
9. Колонна К-1.
10. Схема расположения монолитного пояса на отм. Низа +2,860 (опалубка). Разрезы 1-1, 2-2.
11. Схема расположения элементов перекрытия на отм.низа +2,860. Разрезы 1-1, 2-2.
12.Схема расположения элементов кровли. Разрез 1-1.
13. Узлы 1, 2, 3.
14. Ведомость расхода стали. Ведомость расхода бетона.
Опции проекта вы можете дозаказать в корзине при оформлении заказа

Дополнительные опции
Готово к продаже
Цена, руб. Сроки, дней
Паспорт рабочего проекта 8 000 ₽ 5 рабочих дней купить
Инженерные разделы: ВК + ОВ + ЭО 9 300 ₽ Готов к отправке купить
Дополнительная копия проекта формата А3 6 500 ₽ 5 рабочих дней купить
Электронная копия проекта (скан распечатанной версии) 4 000 ₽ 3 рабочих дня купить
Минимальная
6 267 250 ₽
Задать вопрос
Кровля
Кровельное покрытие
Обрешетка
Контробрешетка
Противоконденсатная (ветро-гидроизоляционная) пленка
Стропильная система
Утепление чердачного перекрытия и стропильной системы
Подшивка свесов кровли
Подшивка потолков террас и лоджий
Водосточная система
Система снегозадержания
Молниезащита
Фундамент
Сваи ж/бетонные
Сваи стальные винтовые
Лента ж/бетонная монолитная мелкозаглубленная
Лента ж/бетонная монолитная на глубину промерзания
Лента ж/бетонная сборная (из ФБС) на глубину промерзания
Плита ж/бетонная монолитная мелкозаглубленная
УШП (Утепленная Шведская Плита)
Бетоннная отмостка по периметру дома
Дренажная система по периметру дома
Ливневая система
Облицовка цоколя фундамента
Система контурного заземления
Стены
Несущая часть стены
Фасадная отделка
Утепление стены
Внутренняя обшивка/штукатурка со стороны помещения
Пол первого этажа
Несущая часть перекрытия
Теплоизоляция цокольного перекрытия
Стяжка/подготовка под чистый пол
Перекрытия над первым и последующими этажами
Несущая часть перекрытия
Звукоизоляция/теплоизоляция в перекрытии
Стяжка/подготовка под чистый пол
Отделка потолка нижележащего этажа
Окна и внешние двери
Окна
Оконные наличники
Откосы в помещении
Отливы снаружи
Подоконники
Входные двери
Внутренние конструкции
Внутренние несущие стены
Внутренние ненесущие стены
Звукоизоляция внутренних стен/перегородок
Межэтажная строительная (черновая) лестница
Межэтажная постоянная (чистовая) лестница
Межкомнатные двери
Высота потолков 1 этажа
Высота потолков 2 этажа
Настилы полов и ограждения крылец, террас, балконов
Гидроизоляция полов балконов
Инженерное оснащение
Жидкостной теплый пол
Электрический теплый пол
Система вентиляции
Только вводы воды, электричества, выводы канализации
Электроразводка и электрощит
Разводка хол. и гор. водоснабжения (ХВС и ГВС)
Разводка батарей и/или системы теплого пола. Без оборудования котельной.
Иное инженерное оснащение
Подготовка участка для строительства
Устройство временного щита электроснабжения
Устройство въезда на участок
Дорога на участке до пятна застройки
Подъем пятна застройки
Подготовка пятна застройки для фундаментных работ
Перемещение или вывоз грунта из котлована фундамента
Обеспечение строительного процесса
Доставка стройматериалов
Генератор для обеспечения электричеством
Уборка и вывоз строительного мусора
Организация проживания рабочих (бытовка)
Биотуалет для рабочих
Гарантия на все выполненные работы
Гарантия
5 лет
Задать вопрос
к каталогу проектов