Строительная компания Green gardens
+7 (905) 222 55 11
Время работы:
Пн-Пт 10-18
Главная страница
Проекты домов
Проект яркого классического дома из СИП панелей с мансардой, террасой, гаражом и навесом для автомобиля
к каталогу проектов
Дом D3632 Проект яркого классического дома из СИП панелей с мансардой, террасой, гаражом и навесом для автомобиля
D3632
210 м²
Стоимость проекта
32 500 ₽
В стоимость входит
Комплект архитектурно-строительных чертежей (АС)
Посмотреть дополнительные опции
Купить проект
Стоимость строительства
~5 408 000 ₽
Посмотреть подробные комплектации
Вопрос по строительству
О проекте
Состав проекта
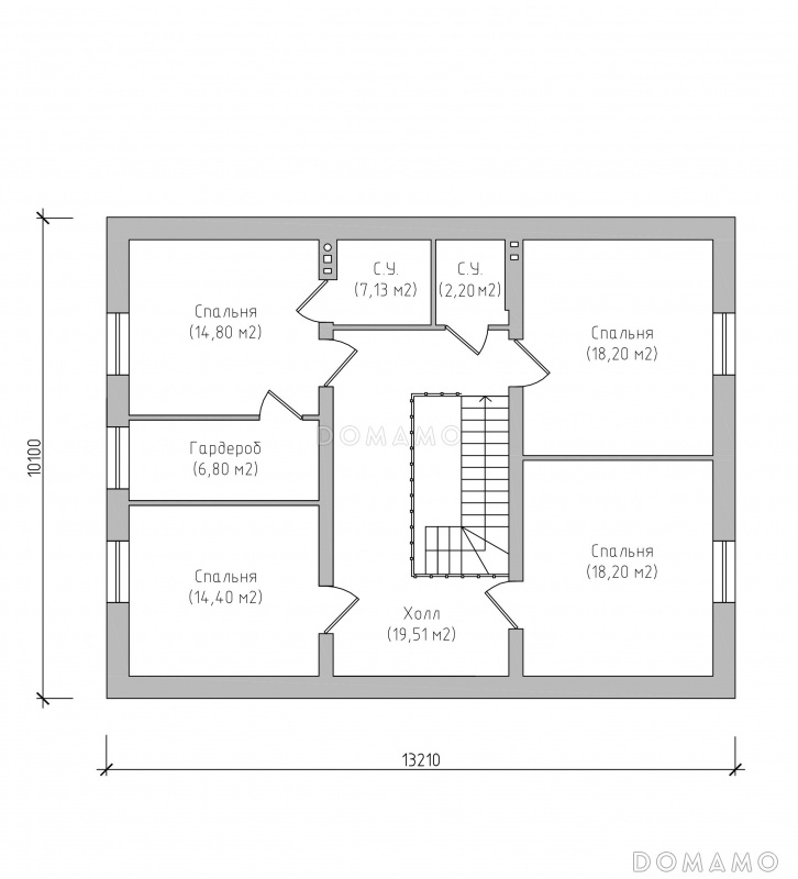
Планы помещений
План 1 этажа
План мансардного этажа
Технические характеристики
Общие
Материал стен
SIP
Общая площадь
210 м²
Площадь застройки
155.73 м²
Количество жилых комнат/спален
5
Этажи
1 этаж + мансарда
Гараж
Встроенный гараж
Количество машин
2
Подвал / цокольный этаж
Без подвала
Ширина дома
13.21 м
Длина дома
15.5 м
Высота в коньке
9.35 м
Кровля
Металлочерепица
Облицовка внешних стен
Деревянная вагонка
,
Облицовочный кирпич
Толщина несущих наружных стен
520 мм
Межэтажные перекрытия
Сборные
Внутренние не несущие перегородки
Газобетонные
Фундамент
Ленточный заглубленный из ФБС
Терраса
Терраса крытая
Стиль
Классический
Дополнительные
Сауна/баня внутри
Нет
Площадь гостиной
20 м²
Площадь кухни
16.8 м²
Количество санузлов
3
Хозяйский санузел
Есть
Хозяйская гардеробная
Есть
Кладовая
2
Входит в стоимость
Цена, руб.
Сроки, дней
Комплект архитектурно-строительных чертежей (АС)
Входит в стоимость
25 рабочих дней
Дополнительные опции
Готово к продаже
Цена, руб.
Сроки, дней
Дополнительная копия проекта формата А3
4 000 ₽
3 рабочих дня
купить
Электронная копия проекта (скан распечатанной версии)
4 000 ₽
3 рабочих дня
купить
3D модель дома
20 000 ₽
3 рабочих дня
купить
к каталогу проектов
Проекты предоставлены порталом
Domamo.ru