Строительная компания Green gardens
+7 (905) 222 55 11
Время работы:
Пн-Пт 10-18
Главная страница
Проекты домов
Проект двухэтажного дома с подвалом и пристроенным небольшим бассейном
к каталогу проектов
Дом D391 Проект двухэтажного дома с подвалом и пристроенным небольшим бассейном
D391
767 м²
Стоимость проекта
50 000 ₽
В стоимость входит
Комплект архитектурно-строительных чертежей (АС)
Посмотреть дополнительные опции
Купить проект
Стоимость строительства
~22 250 000 ₽
Посмотреть подробные комплектации
Вопрос по строительству
О проекте
Состав проекта
Планы помещений
План цокольного этажа
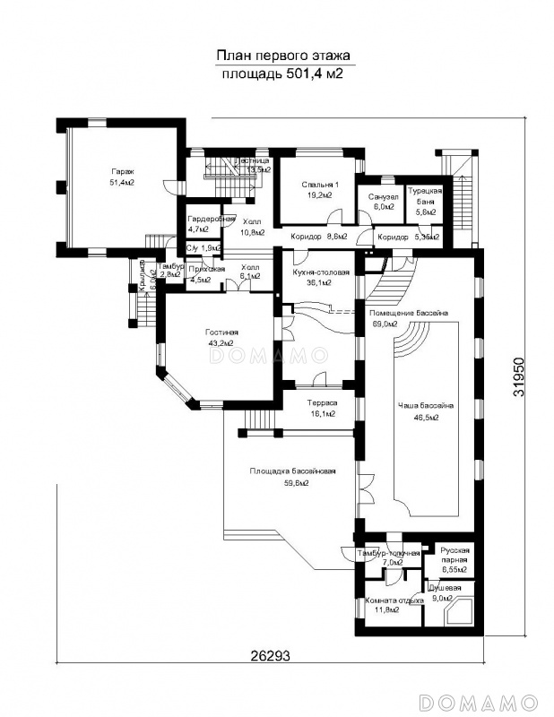
План 1 этажа
План 2 этажа
Технические характеристики
Общие
Материал стен
Кирпич
Общая площадь
767 м²
Жилая площадь
150 м²
Количество жилых комнат/спален
4
Этажи
2 этажа
Гараж
Пристроенный гараж
Количество машин
2
Подвал / цокольный этаж
С окнами
Ширина дома
26.3 м
Длина дома
31.95 м
Кровля
Гибкая черепица
Облицовка внешних стен
Мокрая штукатурка
,
Облицовка камнем
Толщина несущих наружных стен
550 мм
Межэтажные перекрытия
Сборные
Внутренние не несущие перегородки
Кирпичные
Фундамент
Монолитная ж/бетонная плита
Терраса
Терраса крытая
Стиль
Современный
Дополнительные
Окна
Окна до пола
,
Панорамные окна
Камин
Есть
Сауна/баня внутри
Есть
Бассейн
Есть
Площадь гостиной
43.2 м²
Площадь кухни
36.1 м²
Количество санузлов
6
Окно в ванной комнате
Есть
Котельная
Есть
Кабинет
Есть
Постирочная
Есть
Спортзал / детский / игровой зал
Есть
Бильярдная
Есть
Хозяйский санузел
Есть
Хозяйская гардеробная
Есть
Кладовая
7
Входит в стоимость
Цена, руб.
Сроки, дней
Комплект архитектурно-строительных чертежей (АС)
Входит в стоимость
Готов к отправке
к каталогу проектов
Проекты предоставлены порталом
Domamo.ru