Строительная компания Green gardens
+7 (905) 222 55 11
Время работы:
Пн-Пт 10-18
Главная страница
Проекты домов
Проект дома с 4 спальнями, гаражом на 4 машины и мастерской
к каталогу проектов
Дом D3936 Проект дома с 4 спальнями, гаражом на 4 машины и мастерской
D3936
478 м²
Стоимость проекта
80 000 ₽
В стоимость входит
Комплект архитектурно-строительных чертежей (АС)
Посмотреть дополнительные опции
Купить проект
Стоимость строительства
~
Посмотреть подробные комплектации
Вопрос по строительству
О проекте
Состав проекта
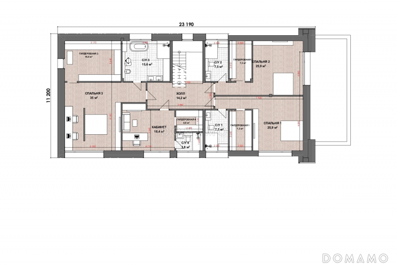
Планы помещений
План 1 этажа
План 2 этажа
Технические характеристики
Общие
Материал стен
Монолит
Общая площадь
478 м²
Жилая площадь
167.17 м²
Площадь застройки
438.59 м²
Количество жилых комнат/спален
6
Этажи
2 этажа
Гараж
Встроенный гараж
Количество машин
4
Подвал / цокольный этаж
Без подвала
Ширина дома
19.44 м
Длина дома
30.69 м
Высота в коньке
8.2 м
Кровля
Рулонная кровля
Облицовка внешних стен
Керамогранит
,
Клинкерная плитка
,
Фасадные панели
Толщина несущих наружных стен
550 мм
Межэтажные перекрытия
Монолитные
Внутренние не несущие перегородки
Монолит
Фундамент
Монолитная ж/бетонная плита
Терраса
Терраса открытая
,
Терраса крытая
Стиль
Хай-тек
Дополнительные
Окна
Окна до пола
,
Панорамные окна
Камин
Есть
Сауна/баня внутри
Нет
Площадь гостиной
22.72 м²
Площадь кухни
49.15 м²
Количество санузлов
7
Окно в ванной комнате
Есть
Котельная
Есть
Кабинет
Есть
Постирочная
Есть
Хозяйский санузел
Есть
Хозяйская гардеробная
Есть
Кладовая
7
Входит в стоимость
Цена, руб.
Сроки, дней
Комплект архитектурно-строительных чертежей (АС)
Входит в стоимость
5 рабочих дней
к каталогу проектов
Проекты предоставлены порталом
Domamo.ru