Строительная компания Green gardens
+7 (905) 222 55 11
Время работы:
Пн-Пт 10-18
Главная страница
Проекты домов
Проект одноэтажного дома из SIP панелей с гаражом и открытой террасой
к каталогу проектов
Дом D4506 Проект одноэтажного дома из SIP панелей с гаражом и открытой террасой
D4506
189 м²
Стоимость проекта
26 000 ₽
В стоимость входит
Комплект архитектурно-строительных чертежей (АС)
Посмотреть дополнительные опции
Купить проект
Стоимость строительства
~4 888 000 ₽
Посмотреть подробные комплектации
Вопрос по строительству
О проекте
Состав проекта
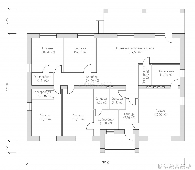
Планы помещений
План 1 этажа
Технические характеристики
Общие
Материал стен
SIP
Общая площадь
189 м²
Площадь застройки
267.87 м²
Количество жилых комнат/спален
4
Этажи
1 этаж
Гараж
Встроенный гараж
Количество машин
1
Подвал / цокольный этаж
Без подвала
Ширина дома
16.93 м
Длина дома
18.45 м
Высота в коньке
7.13 м
Кровля
Металлочерепица
Облицовка внешних стен
Облицовочный кирпич
Толщина несущих наружных стен
520 мм
Межэтажные перекрытия
Сборные
Внутренние не несущие перегородки
Газобетонные
Фундамент
Ленточный заглубленный из ФБС
Терраса
Терраса открытая
Стиль
Классический
Дополнительные
Сауна/баня внутри
Нет
Площадь гостиной
20 м²
Площадь кухни
14.5 м²
Количество санузлов
2
Котельная
Есть
Постирочная
Есть
Хозяйский санузел
Есть
Хозяйская гардеробная
Есть
Кладовая
3
Входит в стоимость
Цена, руб.
Сроки, дней
Комплект архитектурно-строительных чертежей (АС)
Входит в стоимость
25 рабочих дней
Дополнительные опции
Готово к продаже
Цена, руб.
Сроки, дней
Дополнительная копия проекта формата А3
4 000 ₽
3 рабочих дня
купить
Электронная копия проекта (скан распечатанной версии)
4 000 ₽
3 рабочих дня
купить
3D модель дома
20 000 ₽
3 рабочих дня
купить
к каталогу проектов
Проекты предоставлены порталом
Domamo.ru