Строительная компания Green gardens
+7 (905) 222 55 11
Время работы:
Пн-Пт 10-18
Главная страница
Проекты домов
Проект коттеджа с большой гостиной
к каталогу проектов
Дом D544 Проект коттеджа с большой гостиной
D544
448 м²
Стоимость проекта
31 500 ₽
В стоимость входит
Комплект архитектурно-строительных чертежей (АС)
Посмотреть дополнительные опции
Купить проект
Стоимость строительства
11 200 000 ₽
Посмотреть подробные комплектации
Вопрос по строительству
О проекте
Состав проекта
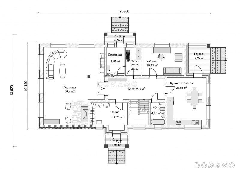
Планы помещений
План 1
План #2
Фасады
Технические характеристики
Общие
Материал стен
Кирпич
Общая площадь
448 м²
Жилая площадь
225 м²
Площадь застройки
229 м²
Количество жилых комнат/спален
5
Этажи
2 этажа + мансарда
Гараж
Нет гаража
Подвал / цокольный этаж
Без подвала
Ширина дома
20.2 м
Длина дома
13.2 м
Кровля
Натуральная черепица
Облицовка внешних стен
Облицовочный кирпич
Межэтажные перекрытия
Монолитные
Внутренние не несущие перегородки
Кирпичные
Фундамент
Свайный
Терраса
Без террасы
Стиль
Эклектика
Дополнительные
Сауна/баня внутри
Нет
Площадь гостиной
60.2 м²
Площадь кухни
25.5 м²
Количество санузлов
2
Котельная
Есть
Кабинет
Есть
Кладовая
1
Балкон / лоджия
Балкон
Входит в стоимость
Цена, руб.
Сроки, дней
Комплект архитектурно-строительных чертежей (АС)
Входит в стоимость
Готов к отправке
к каталогу проектов
Проекты предоставлены порталом
Domamo.ru