Строительная компания Green gardens
+7 (905) 222 55 11
Время работы:
Пн-Пт 10-18
Главная страница
Проекты домов
Проект двухэтажного дома из кирпича с полукруглым эркером
к каталогу проектов
Дом D552 Проект двухэтажного дома из кирпича с полукруглым эркером
D552
490 м²
Стоимость проекта
34 200 ₽
В стоимость входит
Комплект архитектурно-строительных чертежей (АС)
Посмотреть дополнительные опции
Купить проект
Стоимость строительства
~10 600 000 ₽
Посмотреть подробные комплектации
Вопрос по строительству
О проекте
Состав проекта
Планы помещений
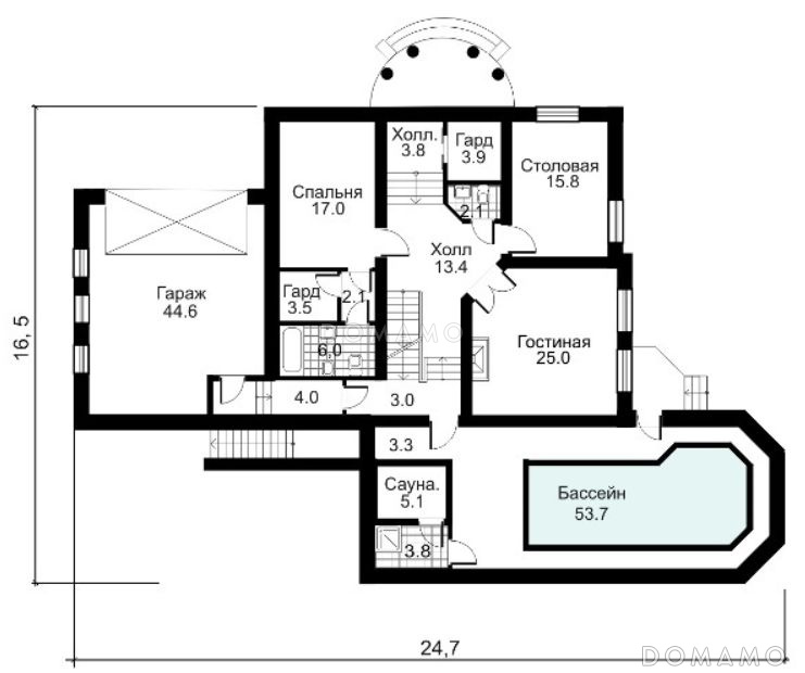
План цокольного этажа
План 1 этажа
План 2 этажа
Технические характеристики
Общие
Материал стен
Кирпич
Общая площадь
490 м²
Жилая площадь
10.2 м²
Площадь застройки
297.3 м²
Количество жилых комнат/спален
4
Этажи
2 этажа
Гараж
Пристроенный гараж
Количество машин
2
Подвал / цокольный этаж
С окнами
Ширина дома
16.5 м
Длина дома
24.7 м
Кровля
Гибкая черепица
Облицовка внешних стен
Мокрая штукатурка
Толщина несущих наружных стен
510 мм
Межэтажные перекрытия
Монолитные
Внутренние не несущие перегородки
Каркасно-обшивные
,
Кирпичные
Фундамент
Ленточный заглубленный из ФБС
Терраса
Без террасы
Стиль
Эклектика
Дополнительные
Окна
Окна до пола
Второй свет
Есть
Камин
Есть
Сауна/баня внутри
Есть
Площадь гостиной
25 м²
Площадь кухни
15.8 м²
Количество санузлов
5
Котельная
Есть
Кабинет
Есть
Бильярдная
Есть
Хозяйский санузел
Есть
Хозяйская гардеробная
Есть
Кладовая
8
Входит в стоимость
Цена, руб.
Сроки, дней
Комплект архитектурно-строительных чертежей (АС)
Входит в стоимость
7 рабочих дней
Дополнительные опции
Готово к продаже
Цена, руб.
Сроки, дней
Паспорт рабочего проекта
2 500 ₽
Готов к отправке
купить
к каталогу проектов
Проекты предоставлены порталом
Domamo.ru