Строительная компания Green gardens
+7 (905) 222 55 11
Время работы:
Пн-Пт 10-18
Главная страница
Проекты домов
Проект просторного коттеджа в стиле модерн с бассейном и гаражом
к каталогу проектов
Дом D609 Проект просторного коттеджа в стиле модерн с бассейном и гаражом
D609
1102 м²
Стоимость проекта
88 000 ₽
В стоимость входит
Комплект архитектурно-строительных чертежей (АС)
Посмотреть дополнительные опции
Купить проект
Стоимость строительства
~26 475 000 ₽
Посмотреть подробные комплектации
Вопрос по строительству
О проекте
Состав проекта
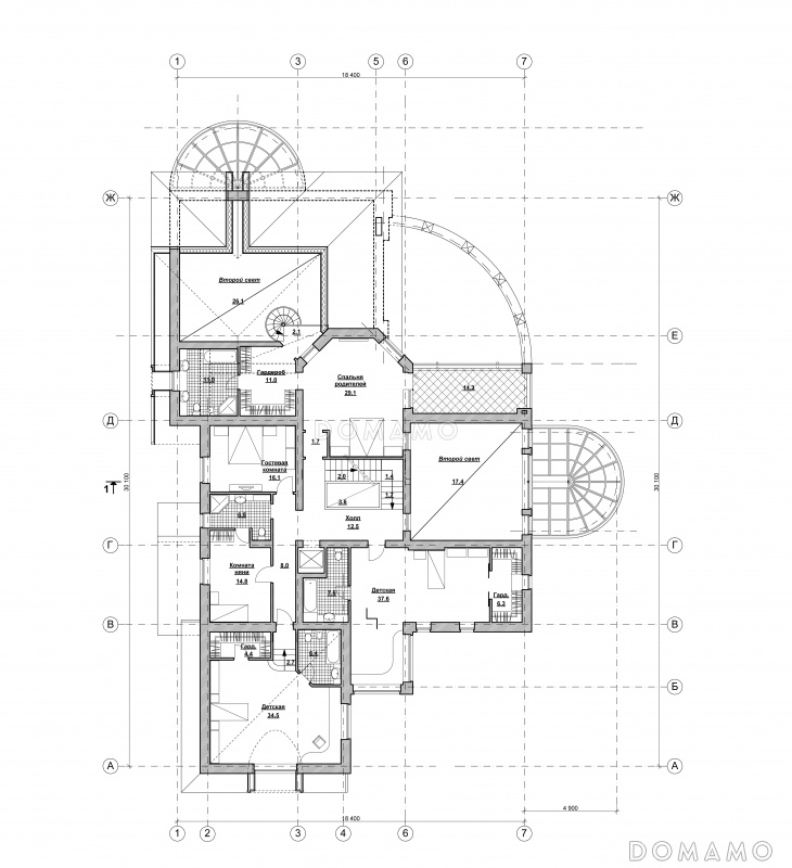
Планы помещений
План цокольного этажа
План 1 этажа
План 2 этажа
План мансардного этажа
Фасады
Технические характеристики
Общие
Материал стен
Кирпич
Общая площадь
1102 м²
Жилая площадь
410 м²
Количество жилых комнат/спален
9
Этажи
2 этажа + мансарда
Гараж
Встроенный гараж
Количество машин
2
Подвал / цокольный этаж
С окнами
Ширина дома
19.4 м
Длина дома
31.1 м
Высота в коньке
16.6 м
Кровля
Гибкая черепица
Облицовка внешних стен
Мокрая штукатурка
,
Облицовка камнем
Толщина несущих наружных стен
640 мм
Терраса
Терраса открытая
,
Терраса крытая
Стиль
Модерн
Дополнительные
Окна
Панорамные окна
Второй свет
Есть
Камин
Есть
Сауна/баня внутри
Есть
Купель
Есть
Бассейн
Есть
Площадь гостиной
38.7 м²
Площадь кухни
18 м²
Количество санузлов
12
Окно в ванной комнате
Есть
Котельная
Есть
Кабинет
Есть
Постирочная
Есть
Спортзал / детский / игровой зал
Есть
Хозяйский санузел
Есть
Хозяйская гардеробная
Есть
Кладовая
11
Зимний сад
Есть
Балкон / лоджия
Балкон
Входит в стоимость
Цена, руб.
Сроки, дней
Комплект архитектурно-строительных чертежей (АС)
Входит в стоимость
Готов к отправке
к каталогу проектов
Проекты предоставлены порталом
Domamo.ru