Строительная компания Green gardens
+7 (905) 222 55 11
Время работы:
Пн-Пт 10-18
Главная страница
Проекты домов
Проект дома с пятью спальнями, открытой планировкой дневной зоны с закругленным углом
к каталогу проектов
Дом D6248 Проект дома с пятью спальнями, открытой планировкой дневной зоны с закругленным углом
D6248
359 м²
Стоимость проекта
39 000 ₽
В стоимость входит
Комплект архитектурно-строительных чертежей (АС)
Посмотреть дополнительные опции
Купить проект
Стоимость строительства
~0 ₽
Посмотреть подробные комплектации
Вопрос по строительству
О проекте
Состав проекта
Планы помещений
План 1 этажа
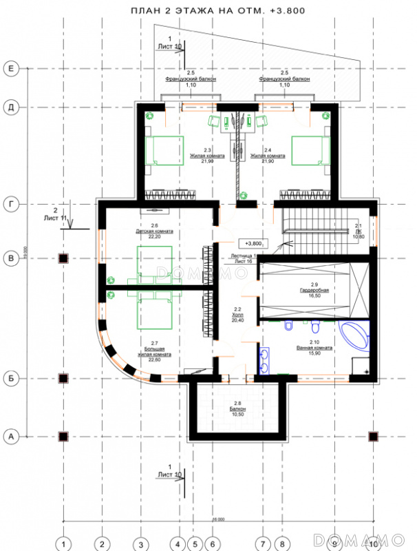
План 2 этажа
Фасады
Технические характеристики
Общие
Материал стен
Кирпич
Общая площадь
359 м²
Количество жилых комнат/спален
5
Этажи
2 этажа
Гараж
Нет гаража
Подвал / цокольный этаж
Без подвала
Ширина дома
16.4 м
Длина дома
19.4 м
Высота в коньке
9.47 м
Кровля
Гибкая черепица
Облицовка внешних стен
Мокрая штукатурка
Толщина несущих наружных стен
480 мм
Межэтажные перекрытия
Монолитные
Внутренние не несущие перегородки
Кирпичные
Фундамент
Ленточный монолитный
Терраса
Терраса крытая
Стиль
Минимализм
,
Эклектика
Дополнительные
Окна
Окна до пола
,
Панорамные окна
,
Окна с французским балконом
Камин
Есть
Сауна/баня внутри
Нет
Площадь гостиной
38.8 м²
Площадь кухни
27.3 м²
Количество санузлов
1
Окно в ванной комнате
Есть
Котельная
Есть
Кладовая
1
Балкон / лоджия
Балкон
Входит в стоимость
Цена, руб.
Сроки, дней
Комплект архитектурно-строительных чертежей (АС)
Входит в стоимость
Готов к отправке
Дополнительные опции
Готово к продаже
Цена, руб.
Сроки, дней
Дополнительная копия проекта формата А3
3 000 ₽
Готов к отправке
купить
Электронная версия проекта (PDF)
4 000 ₽
Готов к отправке
купить
к каталогу проектов
Проекты предоставлены порталом
Domamo.ru