+7 (905) 222 55 11
Время работы:
Пн-Пт 10-18
к каталогу проектов

Дом D6569 Проект двухэтажного газобетонного дома с гаражом на два машиноместа, тремя спальнями и кабинетом на втором этаже

D6569
189.6 м²
Стоимость проекта
40 000 ₽
В стоимость входит
Комплект архитектурно-строительных чертежей (АС)
Посмотреть дополнительные опции
Купить проект

Стоимость строительства
от 4 802 250 ₽
Посмотреть подробные комплектации
Вопрос по строительству
О проекте Состав проекта Комплектации
Технические характеристики
Общие
Материал стен
Газобетон
Общая площадь
189.6 м²
Жилая площадь
90.1 м²
Площадь застройки
172.1 м²
Количество жилых комнат/спален
5
Этажи
2 этажа
Гараж
Встроенный гараж
Количество машин
2
Подвал / цокольный этаж
Без подвала
Ширина дома
13.1 м
Длина дома
14.8 м
Высота в коньке
9 м
Кровля
Металлочерепица
Облицовка внешних стен
Облицовочный кирпич
Толщина несущих наружных стен
375 мм
Межэтажные перекрытия
Монолитные
Внутренние не несущие перегородки
Газобетонные
Фундамент
Малозаглубленные ростверки
Терраса
Терраса крытая
Стиль
Европейская усадьба
,
Современный
Дополнительные
Окна
Окна до пола
Камин
Есть
Сауна/баня внутри
Нет
Площадь гостиной
25.6 м²
Площадь кухни
13 м²
Количество санузлов
2
Окно в ванной комнате
Есть
Котельная
Есть
Кабинет
Есть
Хозяйская гардеробная
Есть
Кладовая
1
Входит в стоимость
Цена, руб. Сроки, дней
Комплект архитектурно-строительных чертежей (АС) Входит в стоимость Готов к отправке

Марка,
№№ листов
Наименование чертежей и спецификаций
ОЧ-1
Общая часть: общие пояснения, объемно-планиров. показатели
АС-
1.
Общие данные: состав архитектурно-строительного. раздела. Условные обозначения
АС-
2.
Общие данные: указания по производству работ; расходы основных строительных материалов
АС-
3.
Общий вид
АС-
4.
Фасад  по оси А
АС-
5.
Фасад  по оси 1
АС-
6.
Фасад  по оси В
АС-
7.
Фасад  по оси 4
АС-
8.
План 1 этажа
АС-
9.
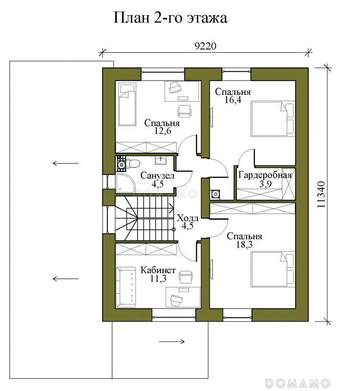
План 2 этажа
АС-
10.
Разрез 1-1
АС-
11.
Разрез 2-2
АС-
12.
Разрез 3-3
АС-
13.
План подошвы фунд ростверков между отм. –1.000 и –0.750
АС-
14.
План внешних фундаментных ростверков, и внутреннего фунд. ростверка
АС-
15.
План фунд. плиты с отм. верха 0.000
АС-
16.
Сечение фундаментных конструкций А-А. Типовые каркасы ростверков и подошвы
АС-
17.
Сечение фундаментных конструкций Б-Б.
АС-
18.
Сечение фундаментных констр.  В-В. Типовой каркас роств. АКР-1.
АС-
19.
Расход арматуры на фунд. конструкции. Расход бетона. Указания по заливке фундамента
АС-
20.
Сечения перемычек над проемами 1,2 этажей.
АС-
21.
План перемычек над проемами 1 этажа
АС-
22.
Спецификация перемычек.
АС-
23.
Спецификация оконных и дверных блоков.
АС-
24
ИСКЛЮЧЕН
АС-
25
Устройство пола 2-го этажа.
АС-
26-1
План плиты перекрытия
АС-
26-2
Сечение по плите перекрытия. Спец. Арматуры на плиту перекрытия.
АС-
27
План стропил
АС-
28
План  кровли
АС-
29
Указания по монтажу покрытия. Специфик. Кров. мат-лов и комплектующих
АС-
30
Спецификация эл-тов стропильной с-мы, и каркасных стен мансарды
АС-
31
Основная стропильная ферма СФ-1.
АС-
32
Укороченные стропила по оси 3: узлы, сечение
АС-
33
Стропила козырька над лоджией: узлы, сечения
АС-
34
Вальма – сечение. Стропила крыльца - сечение
АС-
35
Фонарные окна кровли: узлы и сечения
АС-
36
Указания по кладке стен. Типовая конструкция стен, «пирог» кровли.
АС-
37
Стена по оси «1».
АС-
38
Стена по оси «4».
АС-
39
Стена по оси «А».
АС-
40
Стена по оси «Б».
АС-
41
Стена по оси «В».
АС-
42
Эскизы труб-дымоходов
АС-
43
ППР по выводу дымовых каналов на кровлю.
АС-
44
Указание по монтажу цем.-песчаной черепици – начало.
АС-
45
Указание по монтажу цем.-песчаной черепици – продолжение.
АС-
46
Указание по монтажу цем.-песчаной черепици – окончание.

Опции проекта вы можете дозаказать в корзине при оформлении заказа

Дополнительные опции
Готово к продаже
Цена, руб. Сроки, дней
Паспорт рабочего проекта 5 000 ₽ 3 рабочих дня купить
Дополнительная копия проекта формата А3 4 000 ₽ Готов к отправке купить
Электронная копия проекта (скан распечатанной версии) 4 000 ₽ 3 рабочих дня купить
Минимальная
4 802 250 ₽
Задать вопрос
Кровля
Кровельное покрытие
Обрешетка
Контробрешетка
Противоконденсатная (ветро-гидроизоляционная) пленка
Стропильная система
Утепление чердачного перекрытия и стропильной системы
Подшивка свесов кровли
Подшивка потолков террас и лоджий
Водосточная система
Система снегозадержания
Молниезащита
Фундамент
Сваи ж/бетонные
Сваи стальные винтовые
Лента ж/бетонная монолитная мелкозаглубленная
Лента ж/бетонная монолитная на глубину промерзания
Лента ж/бетонная сборная (из ФБС) на глубину промерзания
Плита ж/бетонная монолитная мелкозаглубленная
УШП (Утепленная Шведская Плита)
Бетоннная отмостка по периметру дома
Дренажная система по периметру дома
Ливневая система
Облицовка цоколя фундамента
Система контурного заземления
Стены
Несущая часть стены
Фасадная отделка
Утепление стены
Внутренняя обшивка/штукатурка со стороны помещения
Пол первого этажа
Несущая часть перекрытия
Теплоизоляция цокольного перекрытия
Стяжка/подготовка под чистый пол
Перекрытия над первым и последующими этажами
Несущая часть перекрытия
Звукоизоляция/теплоизоляция в перекрытии
Стяжка/подготовка под чистый пол
Отделка потолка нижележащего этажа
Окна и внешние двери
Окна
Оконные наличники
Откосы в помещении
Отливы снаружи
Подоконники
Входные двери
Внутренние конструкции
Внутренние несущие стены
Внутренние ненесущие стены
Звукоизоляция внутренних стен/перегородок
Межэтажная строительная (черновая) лестница
Межэтажная постоянная (чистовая) лестница
Межкомнатные двери
Высота потолков 1 этажа
Высота потолков 2 этажа
Настилы полов и ограждения крылец, террас, балконов
Гидроизоляция полов балконов
Инженерное оснащение
Жидкостной теплый пол
Электрический теплый пол
Система вентиляции
Только вводы воды, электричества, выводы канализации
Электроразводка и электрощит
Разводка хол. и гор. водоснабжения (ХВС и ГВС)
Разводка батарей и/или системы теплого пола. Без оборудования котельной.
Иное инженерное оснащение
Подготовка участка для строительства
Устройство временного щита электроснабжения
Устройство въезда на участок
Дорога на участке до пятна застройки
Подъем пятна застройки
Подготовка пятна застройки для фундаментных работ
Перемещение или вывоз грунта из котлована фундамента
Обеспечение строительного процесса
Доставка стройматериалов
Генератор для обеспечения электричеством
Уборка и вывоз строительного мусора
Организация проживания рабочих (бытовка)
Биотуалет для рабочих
Гарантия на все выполненные работы
Гарантия
5 лет
Задать вопрос
к каталогу проектов