Строительная компания Green gardens
+7 (905) 222 55 11
Время работы:
Пн-Пт 10-18
Главная страница
Проекты домов
Проект дома-шале со вторым светом в гостиной и балконом на мансарде
к каталогу проектов
Дом D6659 Проект дома-шале со вторым светом в гостиной и балконом на мансарде
D6659
196 м²
Стоимость проекта
52 800 ₽
В стоимость входит
Комплект архитектурно-строительных чертежей (АС)
Посмотреть дополнительные опции
Купить проект
Стоимость строительства
~0 ₽
Посмотреть подробные комплектации
Вопрос по строительству
О проекте
Состав проекта
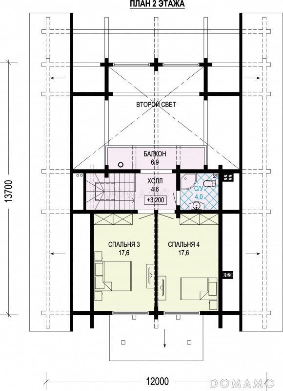
Планы помещений
План 1 этажа
План мансардного этажа
Фасады
Технические характеристики
Общие
Материал стен
Брус
Общая площадь
196 м²
Жилая площадь
110.6 м²
Количество жилых комнат/спален
4
Этажи
1 этаж + мансарда
Гараж
Нет гаража
Подвал / цокольный этаж
Без подвала
Ширина дома
12 м
Длина дома
18.5 м
Высота в коньке
7.54 м
Кровля
Металлочерепица
Межэтажные перекрытия
По деревянным балкам
Внутренние не несущие перегородки
Кирпичные
Фундамент
Ленточный монолитный
Терраса
Терраса крытая
Стиль
Шале
Дополнительные
Окна
Окна до пола
Второй свет
Есть
Мансардные окна
Есть
Камин
Есть
Сауна/баня внутри
Нет
Площадь гостиной
42 м²
Площадь кухни
12.3 м²
Количество санузлов
4
Окно в ванной комнате
Есть
Котельная
Есть
Хозяйский санузел
Есть
Кладовая
1
Балкон / лоджия
Балкон
Входит в стоимость
Цена, руб.
Сроки, дней
Комплект архитектурно-строительных чертежей (АС)
Входит в стоимость
25 рабочих дней
Дополнительные опции
Готово к продаже
Цена, руб.
Сроки, дней
Зеркальная версия проекта
Входит в стоимость
25 рабочих дней
Паспорт рабочего проекта
5 000 ₽
25 рабочих дней
купить
Инженерные разделы: ВК + ОВ + ЭО
23 000 ₽
25 рабочих дней
купить
Дополнительная копия проекта формата А3
3 000 ₽
25 рабочих дней
купить
Две дополнительные копии проекта формата А3 + 1 паспорт рабочего проекта
10 100 ₽
25 рабочих дней
купить
Электронная копия проекта (скан распечатанной версии)
4 000 ₽
25 рабочих дней
купить
к каталогу проектов
Проекты предоставлены порталом
Domamo.ru