Строительная компания Green gardens
+7 (905) 222 55 11
Время работы:
Пн-Пт 10-18
Главная страница
Проекты домов
Проект коттеджа из бруса с эркером
к каталогу проектов
Дом D768 Проект коттеджа из бруса с эркером
D768
155 м²
Стоимость проекта
24 000 ₽
В стоимость входит
Комплект архитектурно-строительных чертежей (АС)
Посмотреть дополнительные опции
Купить проект
Стоимость строительства
~4 340 000 ₽
Посмотреть подробные комплектации
Вопрос по строительству
О проекте
Состав проекта
Планы помещений
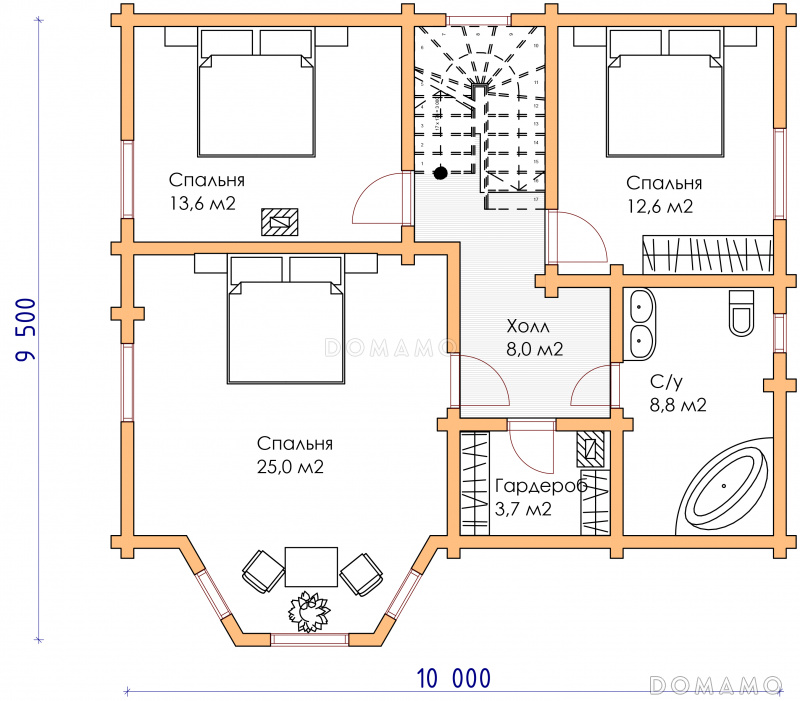
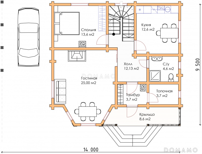
План 1 этажа
План 2 этажа
Фасады
Технические характеристики
Общие
Материал стен
Клееный брус
Общая площадь
155 м²
Жилая площадь
90 м²
Площадь застройки
102 м²
Количество жилых комнат/спален
4
Этажи
1 этаж + мансарда
Гараж
Пристроенный навес
Количество машин
1
Подвал / цокольный этаж
Без подвала
Ширина дома
9.5 м
Длина дома
14 м
Высота в коньке
7.1 м
Кровля
Металлочерепица
Толщина несущих наружных стен
195х150 мм
Межэтажные перекрытия
По деревянным балкам
Фундамент
Свайный
Терраса
Без террасы
Стиль
Европейская усадьба
Дополнительные
Камин
Есть
Сауна/баня внутри
Нет
Площадь гостиной
25 м²
Площадь кухни
12.6 м²
Количество санузлов
2
Котельная
Есть
Входит в стоимость
Цена, руб.
Сроки, дней
Комплект архитектурно-строительных чертежей (АС)
Входит в стоимость
Готов к отправке
к каталогу проектов
Проекты предоставлены порталом
Domamo.ru