Строительная компания Green gardens
+7 (905) 222 55 11
Время работы:
Пн-Пт 10-18
Главная страница
Проекты домов
Проект коттеджа с девятью комнатами
к каталогу проектов
Дом D785 Проект коттеджа с девятью комнатами
D785
498 м²
Стоимость проекта
41 650 ₽
В стоимость входит
Комплект архитектурно-строительных чертежей (АС)
Посмотреть дополнительные опции
Купить проект
Стоимость строительства
~11 350 000 ₽
Посмотреть подробные комплектации
Вопрос по строительству
О проекте
Состав проекта
Планы помещений
План цокольного этажа
План 1 этажа
План 2 этажа
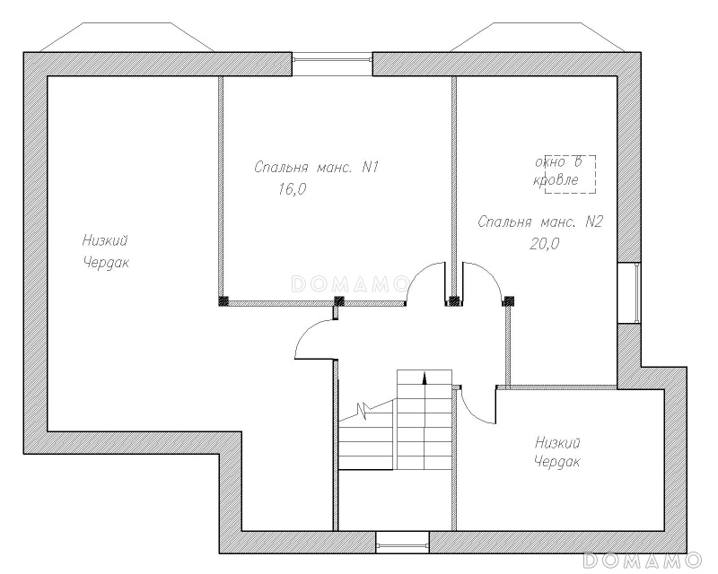
План мансардного этажа
Фасады
Технические характеристики
Общие
Материал стен
Кирпич
Общая площадь
498 м²
Жилая площадь
140 м²
Площадь застройки
199 м²
Количество жилых комнат/спален
8
Этажи
2 этажа + мансарда
Гараж
Пристроенный гараж
Количество машин
1
Подвал / цокольный этаж
С окнами
Погреб
Есть
Ширина дома
11.9 м
Длина дома
16.6 м
Кровля
Гибкая черепица
Облицовка внешних стен
Мокрая штукатурка
Толщина несущих наружных стен
510 мм
Межэтажные перекрытия
Сборно-монолитные
Внутренние не несущие перегородки
Каркасно-обшивные
,
Кирпичные
Фундамент
Ленточный монолитный
Терраса
Терраса крытая
Стиль
Эклектика
Дополнительные
Сауна/баня внутри
Есть
Площадь гостиной
39.7 м²
Площадь кухни
38.9 м²
Количество санузлов
4
Окно в ванной комнате
Есть
Котельная
Есть
Кабинет
Есть
Бильярдная
Есть
Хозяйский санузел
Есть
Хозяйская гардеробная
Есть
Кладовая
2
Балкон / лоджия
Балкон
Входит в стоимость
Цена, руб.
Сроки, дней
Комплект архитектурно-строительных чертежей (АС)
Входит в стоимость
7 рабочих дней
Дополнительные опции
Готово к продаже
Цена, руб.
Сроки, дней
Паспорт рабочего проекта
2 500 ₽
Готов к отправке
купить
к каталогу проектов
Проекты предоставлены порталом
Domamo.ru