Строительная компания Green gardens
+7 (905) 222 55 11
Время работы:
Пн-Пт 10-18
Главная страница
Проекты домов
Проект коттеджа с необычными окнами
к каталогу проектов
Дом D270 Проект коттеджа с необычными окнами
D270
183/283 м²
Стоимость проекта
29 500 ₽
В стоимость входит
Комплект архитектурно-строительных чертежей (АС)
Посмотреть дополнительные опции
Купить проект
Стоимость строительства
5 124 000 ₽
Посмотреть подробные комплектации
Вопрос по строительству
О проекте
Состав проекта
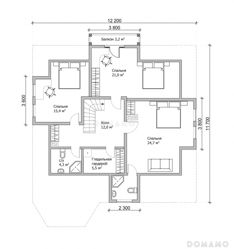
Планы помещений
План 1 этажа
План 2 этажа
Фасады
Технические характеристики
Общие
Материал стен
Клееный брус
Общая площадь
183/283 м²
Жилая площадь
130 м²
Площадь застройки
250 м²
Количество жилых комнат/спален
4
Этажи
1 этаж + мансарда
Гараж
Пристроенный гараж
Количество машин
1
Подвал / цокольный этаж
Без подвала
Ширина дома
17 м
Длина дома
17 м
Кровля
Натуральная черепица
Межэтажные перекрытия
По деревянным балкам
Внутренние не несущие перегородки
Каркасно-обшивные
Фундамент
Малозаглубленные ростверки
Терраса
Терраса открытая
Стиль
Современный
Дополнительные
Окна
Окна до пола
Мансардные окна
Есть
Камин
Есть
Площадь гостиной
36.5 м²
Площадь кухни
12.8 м²
Количество санузлов
4
Постирочная
Есть
Хозяйский санузел
Есть
Кладовая
1
Входит в стоимость
Цена, руб.
Сроки, дней
Комплект архитектурно-строительных чертежей (АС)
Входит в стоимость
Готов к отправке
к каталогу проектов
Проекты предоставлены порталом
Domamo.ru