+7 (905) 222 55 11
Время работы:
Пн-Пт 10-18
к каталогу проектов

Дом D4185 Проект компактных мансардных домов-близнецов из газобетона с изолированной кухней и тремя спальнями

D4185
118 м²
Стоимость проекта
77 400 ₽
В стоимость входит
Комплект архитектурно-строительных чертежей (АС)
Посмотреть дополнительные опции
Купить проект

Стоимость строительства
~2 852 000 ₽
Посмотреть подробные комплектации
Вопрос по строительству
О проекте Состав проекта
Технические характеристики
Общие
Материал стен
Газобетон
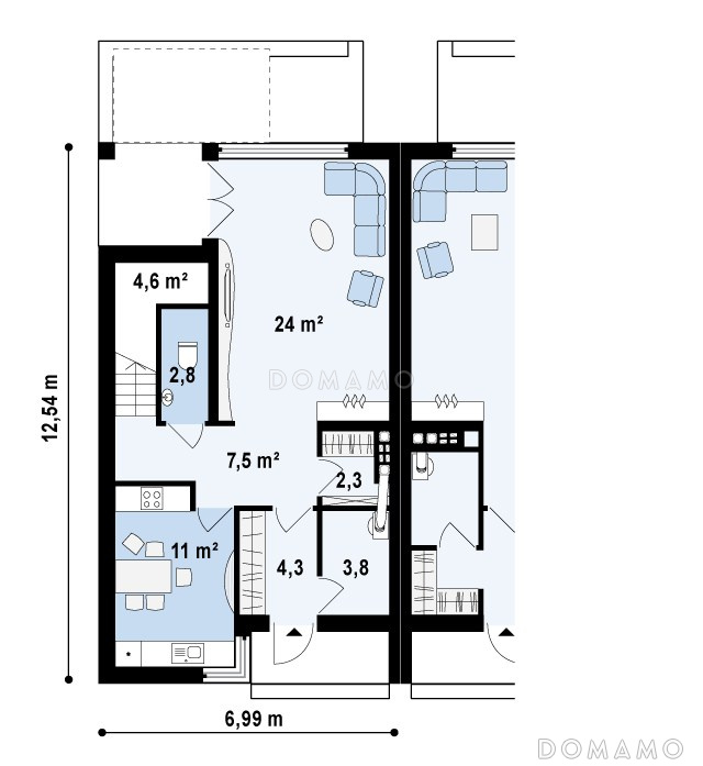
Общая площадь
118 м²
Площадь застройки
78 м²
Количество жилых комнат/спален
3
Этажи
1 этаж + мансарда
Гараж
Нет гаража
Подвал / цокольный этаж
Без подвала
Ширина дома
6.99 м
Длина дома
12.54 м
Высота в коньке
8.46 м
Кровля
Металлочерепица
Облицовка внешних стен
Деревянная вагонка
,
Мокрая штукатурка
Толщина несущих наружных стен
380 мм
Межэтажные перекрытия
Монолитные
Внутренние не несущие перегородки
Газобетонные
Фундамент
Ленточный заглубленный из ФБС
Терраса
Терраса открытая
,
Терраса крытая
Стиль
Современный
Дополнительные
Окна
Окна до пола
,
Окна с французским балконом
Мансардные окна
Есть
Камин
Есть
Сауна/баня внутри
Нет
Площадь гостиной
24 м²
Площадь кухни
11 м²
Количество санузлов
3
Котельная
Есть
Хозяйский санузел
Есть
Кладовая
2
Балкон / лоджия
Балкон
Входит в стоимость
Цена, руб. Сроки, дней
Комплект архитектурно-строительных чертежей (АС) Входит в стоимость Готов к отправке

Основной проект (АС) включает в себя разделы АР и КР. Это все, что касается строительства теплого контура дома (фундамент, стены, кровля, окна) с внешней отделкой +ведомости основных материалов.

Архитектурный раздел (АР).

Этот набор чертежей определяет, как будет выглядеть дом.

Раздел включает:

  • Поэтажные планы. Здесь отражена планировка каждого этажа — расположение комнат, расположение и размеры окон и дверных проемов, толщина стен, расположение дымоходов и вентиляционных каналов.
  • Фасады.
  • План кровли.
  • Планы перекрытий.
  • Разрезы — чертежи вертикального поперечного сечения дома. Они показывают высоту этажей, заглубление подвала, угол наклона крыши. Все эти значения важны, насколько человеку будет комфортно стоять в полный рост под скатной крышей, будут ли открываться двери под лестницей.


ПРИМЕРНЫЙ состав Архитектурного раздела (АР).
1. Ведомость основных комплектов рабочих чертежей. Ведомость рабочих чертежей основного комплекта. Общие данные.
2. План 1-го этажа. Экспликация помещений.
3. План кровли. Спецификация перемычек. Разрезы перемычек.
4. Фасады в осях 1-4, 4-1, А-г, Г-А. Ведомость внешней отделки.
5. Разрезы 1-1. Узел примыкания деревянной обшивки фасада к штукатурному фасаду.
6. Экспликация полов. Спецификация элементов заполнения проемов. Элементы заполнения проемов.
7. Узел опирания перемычки над проемами. Узел опирания внешней стены на фундамент. Узлы армирования террасы.
8. Узлы.

Конструктивный раздел (КР)

Раздел включает:

  • Чертежи фундаментов: конструкции, сечения, спецификации элементов фундамента, схемы армирования и соединений.
  • Схемы перекрытий этажей: схема раскладки плит перекрытия, схема армирования, схема расположения балок, спецификация элементов перекрытия.
  • Детали и узлы: примыкание конструктивных элементов друг к другу, сечения, спецификации материалов

ПРИМЕРНЫЙ состав Конструктивного раздела (КР).
1. Общие данные.
2. Схема расположения монолитного фундамента на отм.-1,600 (опалубка). Разрезы 1-1, 2-2.
3. Схема расположения монолитного фундамента на отм. -1.600(армирование)
4. Монолитный фундамент ФМ-1.
5. Монолитный фундамент ФМ-2.
6. Схема расположения элементов сборного фундамента.
7. Узел устройства фундамента. Разрез 1-1.
8. Схема расположения элементов каркаса.
9. Колонна К-1.
10. Схема расположения монолитного пояса на отм. Низа +2,860 (опалубка). Разрезы 1-1, 2-2.
11. Схема расположения элементов перекрытия на отм.низа +2,860. Разрезы 1-1, 2-2.
12.Схема расположения элементов кровли. Разрез 1-1.
13. Узлы 1, 2, 3.
14. Ведомость расхода стали. Ведомость расхода бетона.
Опции проекта вы можете дозаказать в корзине при оформлении заказа

Дополнительные опции
Готово к продаже
Цена, руб. Сроки, дней
Паспорт рабочего проекта 8 000 ₽ 5 рабочих дней купить
Инженерные разделы: ВК + ОВ + ЭО 38 700 ₽ Готов к отправке купить
Дополнительная копия проекта формата А3 6 500 ₽ 5 рабочих дней купить
Электронная копия проекта (скан распечатанной версии) 4 000 ₽ 3 рабочих дня купить
к каталогу проектов