Строительная компания Green gardens
+7 (905) 222 55 11
Время работы:
Пн-Пт 10-18
Главная страница
Проекты бани
Проект бани со свайным фундаментом
к каталогу проектов
Баня D1006 Проект бани со свайным фундаментом
D1006
116 м²
Стоимость проекта
27 000 ₽
В стоимость входит
Комплект архитектурно-строительных чертежей (АС)
Посмотреть дополнительные опции
Купить проект
Стоимость строительства
~2 912 000 ₽
Посмотреть подробные комплектации
Вопрос по строительству
О проекте
Состав проекта
Планы помещений
План 1 этажа
План мансардного этажа
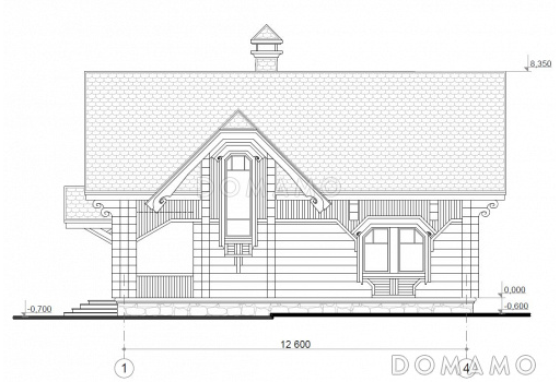
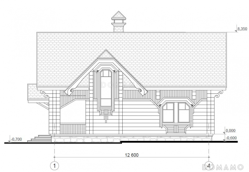
Фасады
Технические характеристики
Общие
Материал стен
Клееный брус
Общая площадь
116 м²
Площадь застройки
88.0 м²
Этажи
1 этаж + мансарда
Гараж
Нет гаража
Подвал / цокольный этаж
Без подвала
Ширина дома
6.0 м
Длина дома
12.6 м
Облицовка внешних стен
Без облицовки
Толщина несущих наружных стен
300 мм
Межэтажные перекрытия
Сборные
Внутренние не несущие перегородки
Каркасно-обшивные
Фундамент
Свайный
Терраса
Терраса крытая
Стиль
Эклектика
Дополнительные
Сауна/баня внутри
Есть
Площадь кухни
10 м²
Количество санузлов
1
Окно в ванной комнате
Есть
Бильярдная
Есть
Дом для узких участков
Есть
Балкон / лоджия
Балкон
Входит в стоимость
Цена, руб.
Сроки, дней
Комплект архитектурно-строительных чертежей (АС)
Входит в стоимость
Готов к отправке
к каталогу проектов
Проекты предоставлены порталом
Domamo.ru