Строительная компания Green gardens
+7 (905) 222 55 11
Время работы:
Пн-Пт 10-18
Главная страница
Проекты бани
Проект бани из бревна с просторной террасой и барбекю
к каталогу проектов
Баня D504 Проект бани из бревна с просторной террасой и барбекю
D504
150 м²
Стоимость проекта
30 000 ₽
В стоимость входит
Комплект архитектурно-строительных чертежей (АС)
Посмотреть дополнительные опции
Купить проект
Стоимость строительства
~2 875 000 ₽
Посмотреть подробные комплектации
Вопрос по строительству
О проекте
Состав проекта
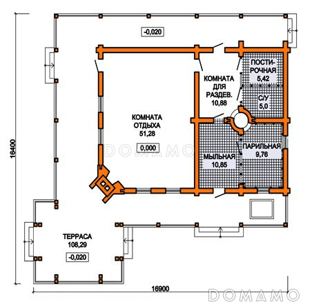
Планы помещений
План 1 этажа
Фасады
Технические характеристики
Общие
Материал стен
Бревно
Общая площадь
150 м²
Этажи
1 этаж
Гараж
Нет гаража
Подвал / цокольный этаж
Без подвала
Ширина дома
16.4 м
Длина дома
16.9 м
Высота в коньке
6.7 м
Кровля
Натуральная черепица
Облицовка внешних стен
Облицовка камнем
Межэтажные перекрытия
По деревянным балкам
Внутренние не несущие перегородки
Каркасно-обшивные
Фундамент
Монолитная ж/бетонная плита
Терраса
Терраса крытая
Стиль
Русская усадьба
Дополнительные
Сауна/баня внутри
Есть
Купель
Есть
Количество санузлов
1
Постирочная
Есть
Входит в стоимость
Цена, руб.
Сроки, дней
Комплект архитектурно-строительных чертежей (АС)
Входит в стоимость
Готов к отправке
Дополнительные опции
Готово к продаже
Цена, руб.
Сроки, дней
Паспорт рабочего проекта
5 000 ₽
Готов к отправке
купить
Дополнительная копия проекта формата А3
2 000 ₽
Готов к отправке
купить
Две дополнительные копии проекта формата А3 + 1 паспорт рабочего проекта
8 000 ₽
Готов к отправке
купить
к каталогу проектов
Проекты предоставлены порталом
Domamo.ru