Строительная компания Green gardens
+7 (905) 222 55 11
Время работы:
Пн-Пт 10-18
Главная страница
Проекты бани
Проект бани с бассейном и двумя комнатами на мансарде
к каталогу проектов
Баня D5403 Проект бани с бассейном и двумя комнатами на мансарде
D5403
140 м²
Стоимость проекта
42 000 ₽
В стоимость входит
Комплект архитектурно-строительных чертежей (АС)
Посмотреть дополнительные опции
Купить проект
Стоимость строительства
~0 ₽
Посмотреть подробные комплектации
Вопрос по строительству
О проекте
Состав проекта
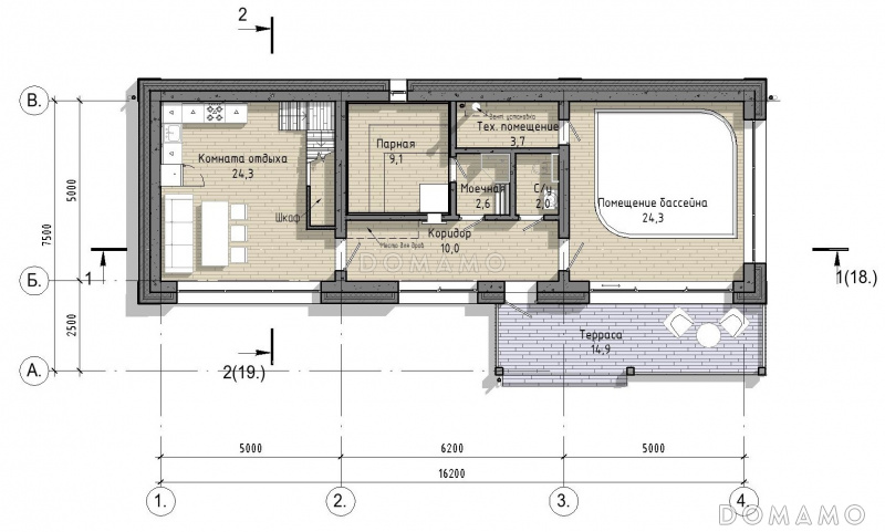
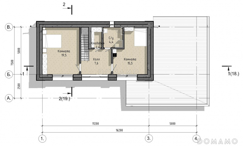
Планы помещений
План 1 этажа
План мансардного этажа
Фасады
Технические характеристики
Общие
Материал стен
Газобетон
Общая площадь
140 м²
Площадь застройки
123.3 м²
Количество жилых комнат/спален
2
Этажи
1 этаж + мансарда
Гараж
Нет гаража
Подвал / цокольный этаж
Без подвала
Ширина дома
7.5 м
Длина дома
16.2 м
Высота в коньке
7.918 м
Кровля
Металлочерепица
Облицовка внешних стен
Облицовка камнем
,
Облицовочный кирпич
Межэтажные перекрытия
Монолитные
Внутренние не несущие перегородки
Газобетонные
Фундамент
Монолитная ж/бетонная плита
Терраса
Терраса крытая
Стиль
Современный
Дополнительные
Окна
Окна до пола
,
Панорамные окна
Сауна/баня внутри
Есть
Бассейн
Есть
Количество санузлов
2
Окно в ванной комнате
Есть
Котельная
Есть
Кладовая
1
Входит в стоимость
Цена, руб.
Сроки, дней
Комплект архитектурно-строительных чертежей (АС)
Входит в стоимость
3 рабочих дня
к каталогу проектов
Проекты предоставлены порталом
Domamo.ru