+7 (905) 222 55 11
Время работы:
Пн-Пт 10-18
к каталогу проектов

Беседка D5026 Проект беседки с остеклением и мангалом

D5026
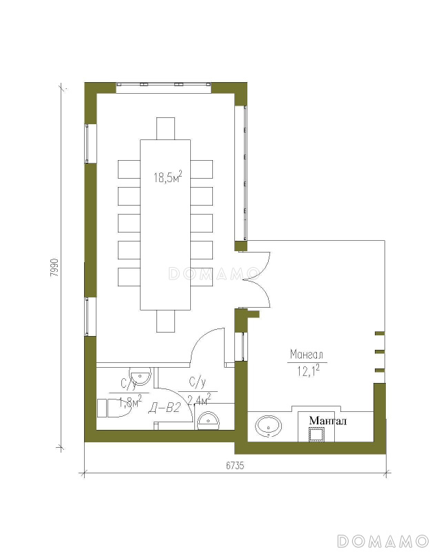
40.3 м²
Стоимость проекта
16 000 ₽
В стоимость входит
Комплект архитектурно-строительных чертежей (АС)
Посмотреть дополнительные опции
Купить проект

Стоимость строительства
~0 ₽
Посмотреть подробные комплектации
Вопрос по строительству
О проекте Состав проекта
Планы помещений
Технические характеристики
Общие
Материал стен
Брус
Общая площадь
40.3 м²
Площадь застройки
56 м²
Этажи
1 этаж
Гараж
Нет гаража
Количество машин
нет
Подвал / цокольный этаж
Без окон
Ширина дома
6.7 м
Длина дома
8.1 м
Кровля
Натуральная черепица
Облицовка внешних стен
Деревянная вагонка
Толщина несущих наружных стен
200 мм
Фундамент
Свайный
Терраса
Терраса крытая
Стиль
Минимализм
,
Современный
,
Хай-тек
Дополнительные
Окна
Окна до пола
,
Панорамные окна
Сауна/баня внутри
Нет
Количество санузлов
2
Входит в стоимость
Цена, руб. Сроки, дней
Комплект архитектурно-строительных чертежей (АС) Входит в стоимость Готов к отправке

Марка,
№№ листов
Наименование чертежей и спецификаций
ОЧ-1
Общая часть: общие пояснения, объемно-планиров. показатели
АС-
1.
Общие данные: состав архитектурно-строительного. раздела. Условные обозначения
АС-
2.
Общие данные: указания по производству работ; расходы основных строительных материалов
АС-
3.
Общий вид
АС-
4.
Фасад  по оси А
АС-
5.
Фасад  по оси 1
АС-
6.
Фасад  по оси В
АС-
7.
Фасад  по оси 4
АС-
8.
План 1 этажа
АС-
9.
План 2 этажа
АС-
10.
Разрез 1-1
АС-
11.
Разрез 2-2
АС-
12.
Разрез 3-3
АС-
13.
План подошвы фунд ростверков между отм. –1.000 и –0.750
АС-
14.
План внешних фундаментных ростверков, и внутреннего фунд. ростверка
АС-
15.
План фунд. плиты с отм. верха 0.000
АС-
16.
Сечение фундаментных конструкций А-А. Типовые каркасы ростверков и подошвы
АС-
17.
Сечение фундаментных конструкций Б-Б.
АС-
18.
Сечение фундаментных констр.  В-В. Типовой каркас роств. АКР-1.
АС-
19.
Расход арматуры на фунд. конструкции. Расход бетона. Указания по заливке фундамента
АС-
20.
Сечения перемычек над проемами 1,2 этажей.
АС-
21.
План перемычек над проемами 1 этажа
АС-
22.
Спецификация перемычек.
АС-
23.
Спецификация оконных и дверных блоков.
АС-
24
ИСКЛЮЧЕН
АС-
25
Устройство пола 2-го этажа.
АС-
26-1
План плиты перекрытия
АС-
26-2
Сечение по плите перекрытия. Спец. Арматуры на плиту перекрытия.
АС-
27
План стропил
АС-
28
План  кровли
АС-
29
Указания по монтажу покрытия. Специфик. Кров. мат-лов и комплектующих
АС-
30
Спецификация эл-тов стропильной с-мы, и каркасных стен мансарды
АС-
31
Основная стропильная ферма СФ-1.
АС-
32
Укороченные стропила по оси 3: узлы, сечение
АС-
33
Стропила козырька над лоджией: узлы, сечения
АС-
34
Вальма – сечение. Стропила крыльца - сечение
АС-
35
Фонарные окна кровли: узлы и сечения
АС-
36
Указания по кладке стен. Типовая конструкция стен, «пирог» кровли.
АС-
37
Стена по оси «1».
АС-
38
Стена по оси «4».
АС-
39
Стена по оси «А».
АС-
40
Стена по оси «Б».
АС-
41
Стена по оси «В».
АС-
42
Эскизы труб-дымоходов
АС-
43
ППР по выводу дымовых каналов на кровлю.
АС-
44
Указание по монтажу цем.-песчаной черепици – начало.
АС-
45
Указание по монтажу цем.-песчаной черепици – продолжение.
АС-
46
Указание по монтажу цем.-песчаной черепици – окончание.

Опции проекта вы можете дозаказать в корзине при оформлении заказа

Дополнительные опции
Готово к продаже
Цена, руб. Сроки, дней
Паспорт рабочего проекта 4 000 ₽ 3 рабочих дня купить
Дополнительная копия проекта формата А3 4 000 ₽ Готов к отправке купить
Электронная копия проекта (скан распечатанной версии) 4 000 ₽ 3 рабочих дня купить
к каталогу проектов