Строительная компания Green gardens
+7 (905) 222 55 11
Время работы:
Пн-Пт 10-18
Главная страница
Проекты гаражей
Проект гаража c генераторной и мансардным этажом
к каталогу проектов
Гараж d541 Проект гаража c генераторной и мансардным этажом
D541
127 м²
Стоимость проекта
17 000 ₽
В стоимость входит
Комплект архитектурно-строительных чертежей (АС)
Посмотреть дополнительные опции
Купить проект
Стоимость строительства
~2 775 000 ₽
Посмотреть подробные комплектации
Вопрос по строительству
О проекте
Состав проекта
Планы помещений
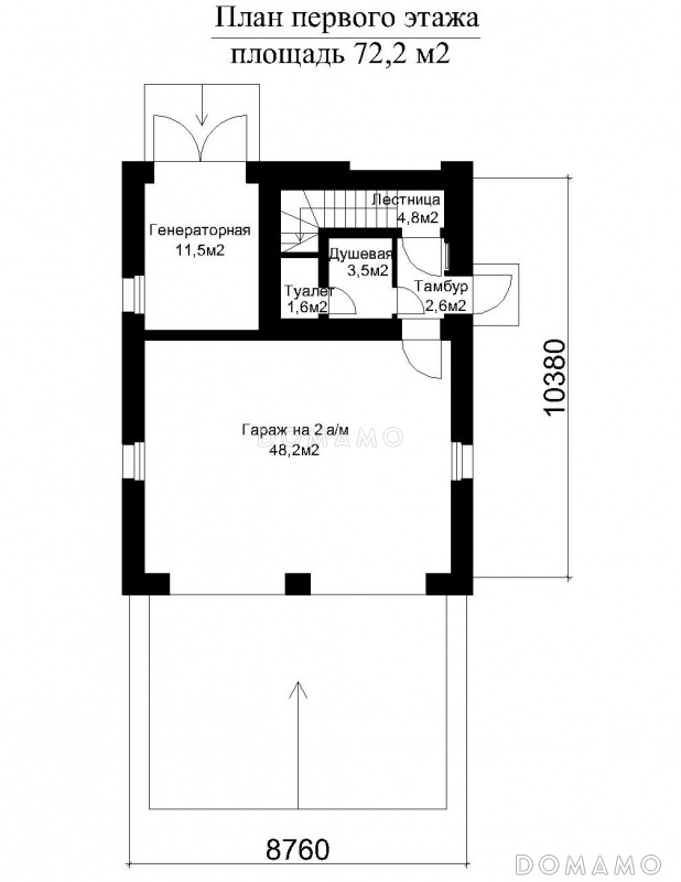
План 1 этажа
План мансардного этажа
Технические характеристики
Общие
Материал стен
Кирпич
Общая площадь
127 м²
Количество жилых комнат/спален
1
Этажи
1 этаж + мансарда
Гараж
Нет гаража
Количество машин
2
Подвал / цокольный этаж
Без подвала
Ширина дома
8.8 м
Длина дома
10.4 м
Кровля
Металлочерепица
Облицовка внешних стен
Облицовка камнем
,
Облицовочный кирпич
Толщина несущих наружных стен
550 мм
Межэтажные перекрытия
Монолитные
Внутренние не несущие перегородки
Кирпичные
Фундамент
Ленточный монолитный
Терраса
Без террасы
Стиль
Современный
Дополнительные
Сауна/баня внутри
Нет
Площадь гостиной
23.4 м²
Площадь кухни
4.4 м²
Количество санузлов
2
Входит в стоимость
Цена, руб.
Сроки, дней
Комплект архитектурно-строительных чертежей (АС)
Входит в стоимость
Готов к отправке
к каталогу проектов
Проекты предоставлены порталом
Domamo.ru