Строительная компания Green gardens
+7 (905) 222 55 11
Время работы:
Пн-Пт 10-18
Главная страница
Проекты гаражей
Проект современного гаража на 2 автомобиля с подвалом и хозяйственным помещением
к каталогу проектов
Гараж D5875 Проект современного гаража на 2 автомобиля с подвалом и хозяйственным помещением
D5875
73 м²
Стоимость проекта
22 000 ₽
В стоимость входит
Комплект архитектурно-строительных чертежей (АС)
Посмотреть дополнительные опции
Купить проект
Стоимость строительства
~0 ₽
Посмотреть подробные комплектации
Вопрос по строительству
О проекте
Состав проекта
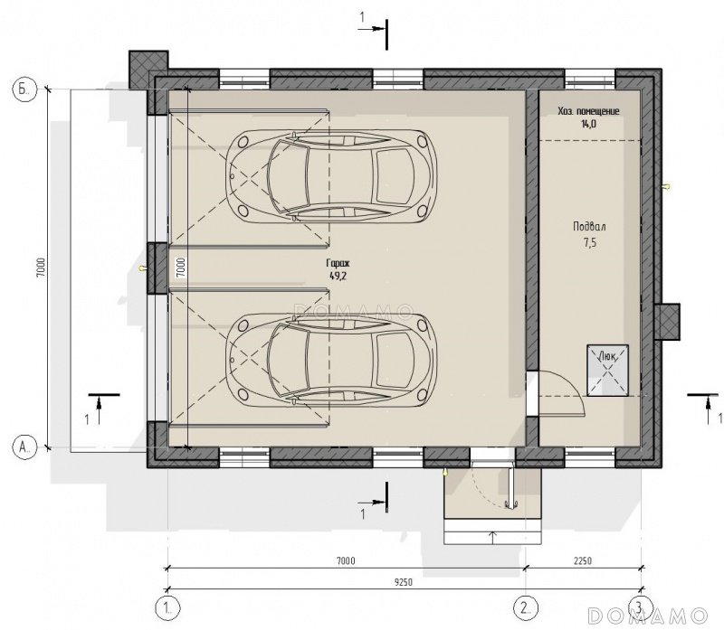
Планы помещений
План 1 этажа
Фасады
Технические характеристики
Общие
Материал стен
Газобетон
Общая площадь
73 м²
Площадь застройки
81 м²
Этажи
1 этаж
Количество машин
2
Подвал / цокольный этаж
Без окон
Погреб
Есть
Ширина дома
7 м
Длина дома
9.25 м
Высота в коньке
3.8 м
Кровля
Рулонная кровля
Межэтажные перекрытия
Монолитные
Внутренние не несущие перегородки
Газобетонные
Фундамент
Монолитная ж/бетонная плита
Терраса
Без террасы
Стиль
Современный
Дополнительные
Сауна/баня внутри
Нет
Кладовая
1
Входит в стоимость
Цена, руб.
Сроки, дней
Комплект архитектурно-строительных чертежей (АС)
Входит в стоимость
3 рабочих дня
к каталогу проектов
Проекты предоставлены порталом
Domamo.ru